TD皮带斗式提升机
【应用行业】:食品、医药、化学、水泥、建材、矿山、电力、煤矿、化工、耐火材料、磨料等
【产品别称】:皮带提升机
【适用物料】:粉状、颗粒、块状等
【价格区间】:电议
【处理能力】:电议
全国24小时销售热线:13598727473
型号和参数
皮带斗式提升机型号和参数:
|
斗提机型号 |
TD100 | TD160 | TD250 | TD315 | ||||||||||
| 料斗型式 | Q | H | Q | H | Zd | Sd | Q | H | Zd | Sd | Q | H | Zd | Sd |
| 输送量①,m3/h | 4 | 7.6 | 9 | 16 | 16 | 27 | 20 | 36 | 38 | 59 | 28 | 50 | 42 | 67 |
| 料斗容积,L | 0.15 | 0.3 | 0.49 | 0.9 | 1.2 | 1.9 | 1.12 | 2.24 | 3.0 | 4.6 | 1.95 | 3.55 | 3.75 | 5.8 |
| 料斗运行速度,m/s | 1.4 | 1.4 | 1.6 | 1.6 | ||||||||||
| 滚筒转速,r/min | 67 | 67 | 61 | 61 | ||||||||||
| 斗提机型号 | TD400 | TD500 | TD630 | |||||||||
| 料斗型式 | Q | H | Zd | Sd | Q | H | Zd | Sd | Q | H | Zd | Sd |
| 输送量,m3/h | 40 | 76 | 68 | 110 | 63 | 116 | 96 | 154 | - | 142 | 148 | 238 |
| 料斗容积,L | 3.1 | 5.6 | 5.9 | 9.4 | 4.84 | 9.0 | 9.3 | 14.9 | - | 14 | 14.6 | 23.5 |
| 料斗运行速度,m/s | 1.8 | 1.8 | 2.0 | |||||||||
| 滚筒转速,r/min | 55 | 55 | 48 | |||||||||
原理及性能
斗提机工作原理及性能
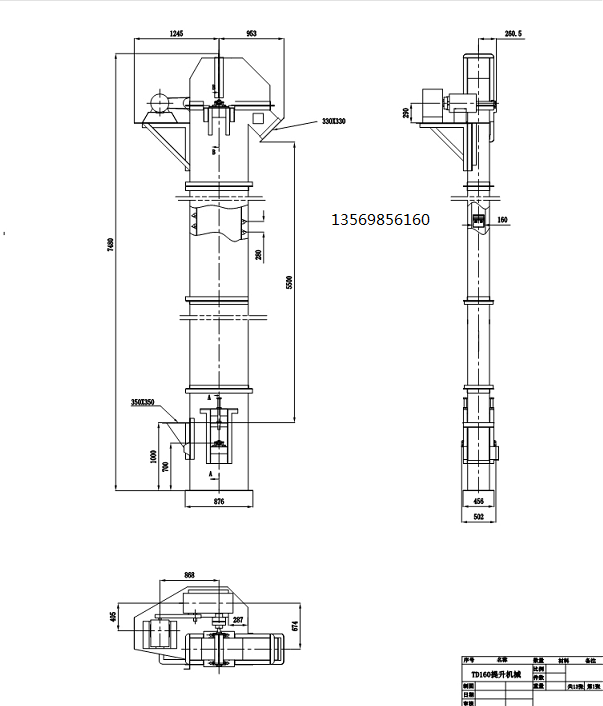
斗式提升机的输送工作原理是:料斗把物料从下面的储藏中舀起,随着输送带或链提升到顶部,绕过顶轮后向下翻转, 斗式提升机将物料倾入接受槽内。带传动的斗式提升机的传动带一般采用橡胶尼龙带,斗式提升机一般都装有机壳,以防止斗式提升机中粉尘飞扬,TD型斗式提升机由运行部分(料斗与牵引胶带),带有传动滚筒的上部区段,带有拉紧滚筒的下部区段,中间机壳,驱动装置,逆止制动装置等组成
结构
斗式提升机结构:
1、料斗:固定于胶带(或牵引链)上,有三种:深斗(适合于松散物料),浅斗(黏性较大的物料),三角斗(比重大且成块状的物料)。
2、外壳:内装传动装置和制动器。
3、机身:钢板焊成方形壳。
4、下部:装张紧装置。
5、电机减速机
安装事项
斗式提升机安装事项:
1、斗式提升机必须牢固地安装在坚实的混凝土基础上。混凝土基础表面应平整、水平,保证斗式提升机安装后满足竖向要求。
较高高度的斗式提升机应与相邻建筑物(如筒仓、车间等)在中、上缸适当位置连接,以增加其稳定性。安装时,先安装下部,固定地脚螺栓,再安装中缸,再安装上缸。套管安装成功,垂直度校正。用铅直线测量全高时,误差应小于10mm。上下轴线应平行,轴线应在同一平面 内。
当安装有较低高度的斗式升降机时,上、中、下套管可连接在地平面上,然后将整个车身提升并固定在混凝土基础上。
2、套管安装好后,安装链条和料斗。斗杆用U形螺旋不仅是链条接头,也是料斗的固定部件。U形螺钉的螺母必须拧紧,并可靠防止松动。
3、链条和料斗安装好后,应适当张紧。
4、在减速器和轴承座上分别加入适量的油和润滑脂。减速器采用工业齿轮油润滑。轴承座可采用钙基或钠基润滑脂。
5、试运行:安装完成后,应进行空车试运行。注意不要倒车和碰撞。空转不少于2小时,无过热现象。轴承温升不超过250C,减速器温升不超过300C,空转2小时后,一切正常后方可进行负荷试车。带负荷试车时,送料要均匀,防止送料过多,堵塞下部,造成“堵料”。
选型
斗式提升机选型:
斗式提升机是厂家常用的提升设备,那么我们各大厂家该如何选择斗式提升机的型号,在选购的时候应该注意哪些,这些都是我们所需要注意的,下面是斗式提升机的选型方法。
斗式提升机作为常用的提升机设备,其型号的选用受很多方面因素的制约,选错型号会给使用方带来不尽的麻烦。一般决定斗式提升机选型取决于以下几个要素:
一、物料的形态:物料是粉状还是颗粒状还是小块状。
二、物料的物理性质:物料有没有吸附性或者粘稠度,是否含水。
三、物料的比重:一般斗式提升机参数都是针对堆积比重在1.6以下的物料设计和计算的,太大的物料比重需要进行牵引力和传动部分抗拉强度的计算。
四、单位时间内的输送量。
一般来说,物料的形态直接决定物料的卸料方式,常用规律为粉状物料采用离心抛射卸料、块状物料采用重力卸料,而卸料方式的不同决定斗式提升机采用的料斗形式的不同,离心抛射卸料多采用浅斗和弧形斗,而重力卸料需采用深斗。斗式提升机所采用料斗的类型不同则单位时间内提升的物料输送量是不一样的。斗式提升机最终选型是取决于料斗形式、斗速、物料比重、物料性质、料斗数量等各项参数的综合考虑。
筛分筛选机械
- 活性炭/炭化料平面回转筛精细筛分机
- 摆式振动筛
- GLS直线概率筛
- 金属粉末振动筛
- ZPS直排式振动筛
- DZSF直线振动筛
- 不锈钢振动筛
- 泥浆过滤振动筛
- 三次元振动筛分机
- 振动筛料机
- 强力振动筛
- 脱水振动输送机
- 分级振动筛
- 平面往复筛
- 超声波圆形筛
- 筛煤机
- 铸造振砂机
- YKR圆振动筛
- FYBS方形摇摆筛
- YHS弧形筛
- 多层方形摇摆筛
- 塑料颗粒粉末振动筛分机
- 液体过滤圆形筛
- 圆盘筛
- 金属硅摇摆筛
- 圆形旋转振动筛
- 化工粉末材料振动筛
- 圆形振动筛
- 方摇筛
- 尾矿分机脱水干排一体筛机
- 直线脱水筛
- 全封闭式滚筒筛
- 钢球挑选机
- GPS高频筛
- YK圆振筛
- 尾煤脱介筛
- 原煤筛
- 叠层振动筛
- 圆筒回转筛
- 单层圆振筛
提升输送机械
- 真空上料机
- 干粉砂浆斗式提升机
- 斗提式提升机
- GTD型高效斗式提升机
- TG钢丝绳芯胶带斗式提升机
- 大倾角输送机
- 重型板式给料机
- HL型环链离心斗式提升机
- 双排板链斗式提升机
- 双排链刮板输送机
- 埋刮板链式输送机
- 沙石鳞板输送喂料机
- 提升机
- DZC垂直振动提升机
- 不锈钢Z型提升机
- 转斗提升机
- 矿粉板链斗式提升机
- 石膏粉斗式提升机
- MS刮板输送机
- MC埋刮板输送机
- MZ刮板输送机
- 链条式刮板机
- 鳞板式输送机
- 斗式提升机厂家
- 高温物料输送机
- 链板上料输送机
- 绞龙螺旋提升机
- GX管式螺旋输送机
- LS槽式螺旋输送机
- SZG振动输送机
- SZC振动输送机
- SCG长距离高温物料振动输送机
- 长距离振动水平输送机
- TH160环链提升机
- NE15板链斗式提升机
- TD160斗式提升机
- 脱水捞坑提升机
- 螺旋传送机
- 水冷螺旋输送机
- 不锈钢斗式提升机
给料喂料机械
- 无尘投料站
- 振动给矿机
- GZG振动给料机
- 链带式给料机
- 活化给料机
- 星型给料机
- 板式给料机
- 活化料斗
- 往复式给煤机
- 棒条式振动喂料机
- GZ电磁振动给料机
- 闭风器
- 电动卸灰阀
- 电磁振动给料机
- FZC振动出矿机
- 吊式圆盘给料机
- 梨式卸料器
- 振动喂料机
- 振动筛分放矿机
- 振动放矿机
- 圆盘给料机
- 星型卸料器
- 叶轮给料机
- 振动料斗
- 往复式给料机
- 电磁给料机
- 振动给料机
其他设备及配件
- NE15板链提升机料斗
- 振动马达
- 电磁仓壁振动器
- 电机仓壁振动器
- NE100板链斗式提升机链条
- NE50板链斗式提升机链条
- NE30板链斗式提升机链条
- NE15板链斗式提升机链条
- TD皮带斗式提升机料斗
- 环链斗式提升机料斗
- NE板链提升机料斗
- 稀油激振器
- 聚氨酯筛板
- 复合弹簧
- 橡胶弹簧
- 防爆振动电机
- 侧板振动电机
- TZD振动电机
- ZDJ振动电机
- YZQ振动电机
- VB振动电机
- XVM振动电机
- JZO振动电机
- YZD振动电机
- YZO振动电机
- YZU振动电机
- YZS振动电机
- 仓壁振动器
- 混凝土振动平台
- 模具振动平台
- 仓壁振打器
- 提升机料斗
- 粉尘加湿搅拌机
- 斗式提升机链条
- 不锈钢刮板机链条
- 水泥人防门铸造振动平台
- 刮板机链条
- 振动给料斗
- 振动磨机
- 仓顶安全阀

